Project
About Us
Clients
Blog
Contact
Housing
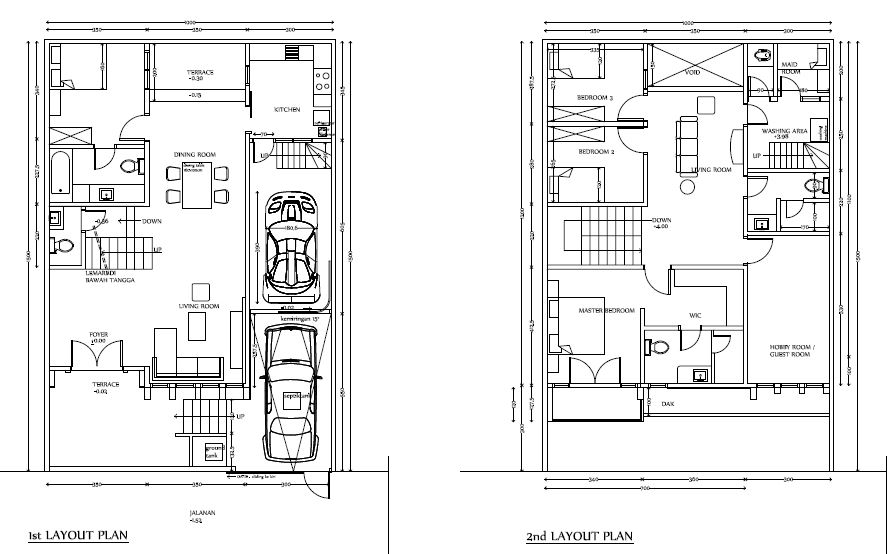
Sunter Garden House
Client:
Mrs. Indah
Location:
Sunter Garden, North Jakarta
Year:
2015
Area:
300m2
BACK
Project
- Commercials
- Offices
- Retails
- Housing
- Hospitality
About Us
Clients
Blog
Contact